















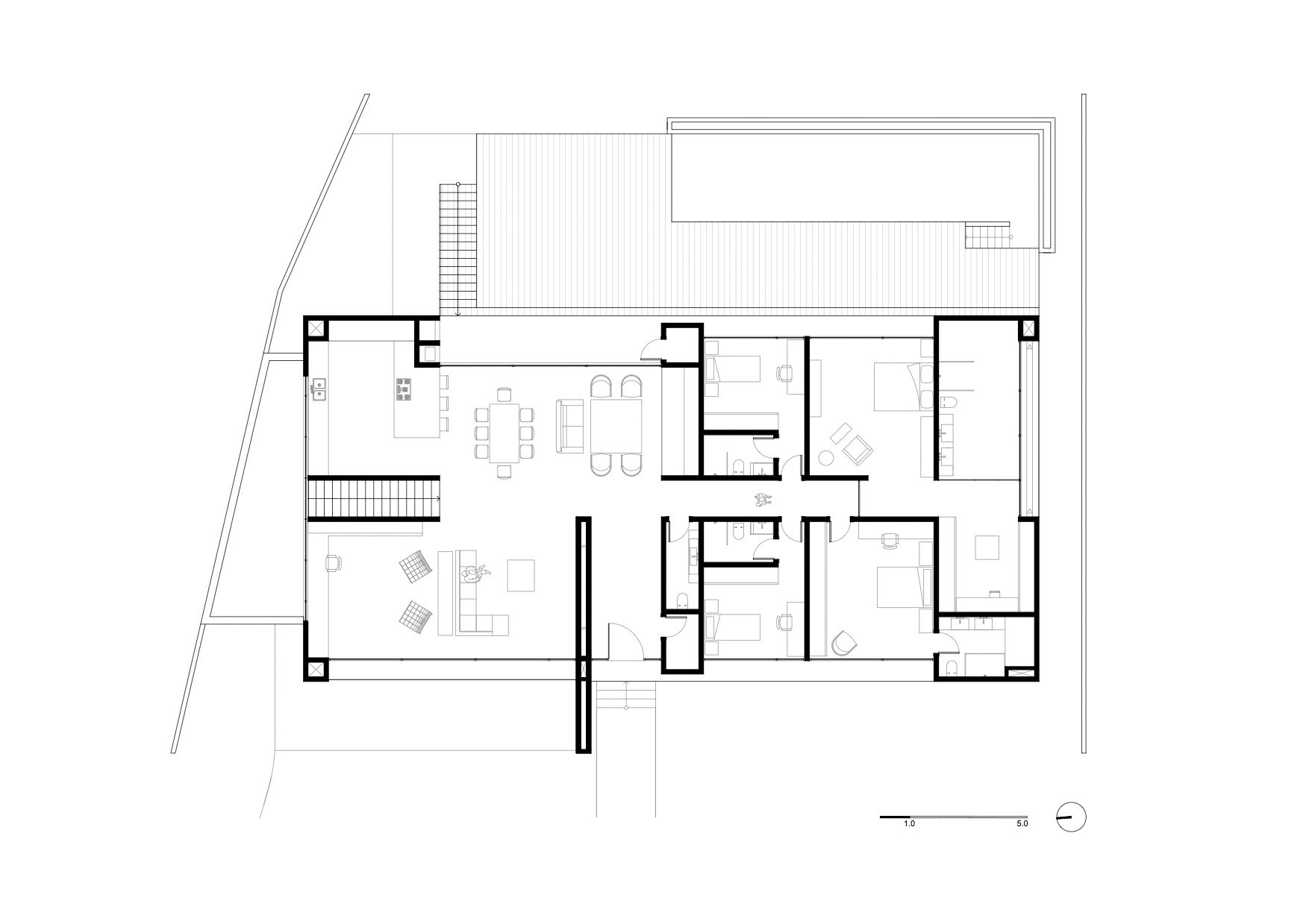
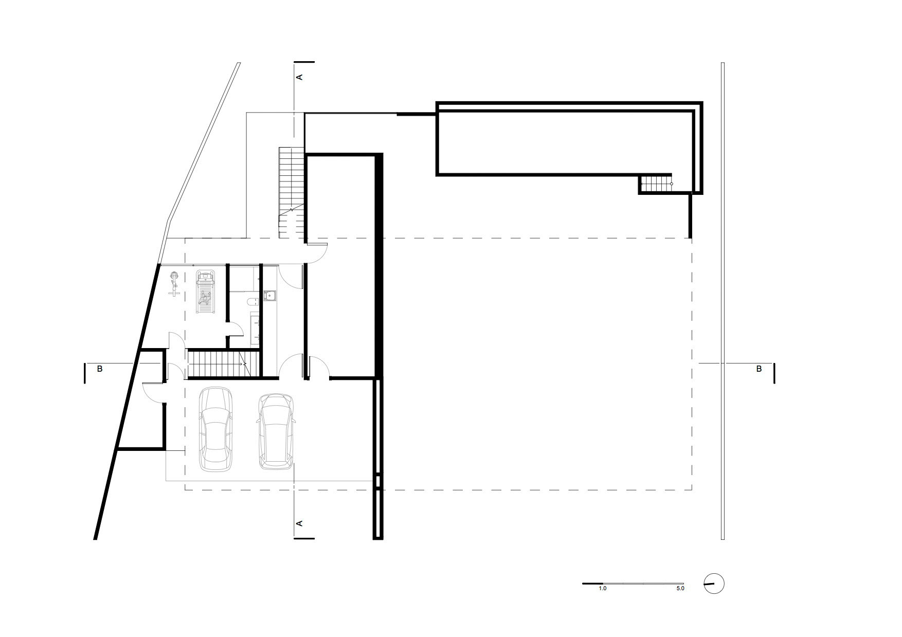
Résidence unifamiliale, située à Curitiba, avec la configuration de l’étage principal au rezde- chaussée, qui abrite le programme complet du logement, et un étage inférieur pour des services et domaine technique. Le bâtiment a été mis en oeuvre afin de diviser le lot, la création de deux jardins: un public, ce qui permet le libre accès des autres résidents de la copropriété, et un autre, un accès privé, limité au propriétaire. Dans ces jardins, les conditions limitant, sont: le bois natif et les pipes de drainage limitant l’expansion de l’oeuvre. La résidence dispose d’un format qui offre une connexion généreuse entre les environnements internes et externes. Le volume linéaire se bénéficie de le vastes terrains, avec la réflexion de la façade en verre vers le bois dense existante, tandis que la face d’arrière, face au jardin privé, dialogue à une clairière et une terrasse en bois avec une piscine, au fond.